PAREDES Brokers

Propiedades

Empresa


Atención personalizada y permanente en todas las instancias.

Historia

Nuestra empresa nació con el objetivo de ofrecer las mejores soluciones a las necesidades, cada vez más exigentes, del mercado inmobiliario. Desde nuestros orígenes en la década del ´70, como Paredes inmobiliaria, nos hemos desarrollado y especializado en el área de las propiedades comerciales e industriales.

Metas

Ofrecer el seguimiento y el análisis constante de cada operación inmobiliaria. Cumplir los plazos y expectativas del cliente, generando propuestas inteligentes y desarrollos creativos. Generar una relación comercial basada en la confianza Mejorar permanentemente la atención al cliente.

Servicio

Utilizamos tecnología de última generación para la comunicación, para trascender a nivel mundial a través de la página web y también para agilizar y promover la inmensa base de datos. Brindamos atención personalizada y permanente en todas las instancias. Ofrecemos respuestas de profesionales altamente capacitados ante los mínimos requerimientos de nuestros clientes.

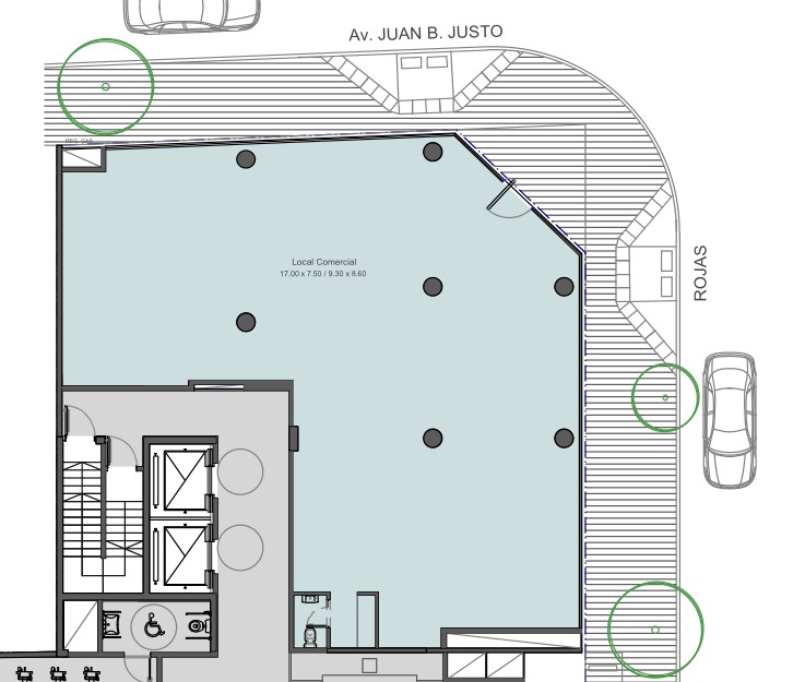
JUAN B. JUSTO, AV. AL 3400 Y ESQ. ROJAS
VILLA CRESPO

VENTA US 680000 
  Detalle de Propiedad
Superficie
210 M2
Tipo
LOCAL
  Descripción
Local en pozo.
Planta Baja de 210m² cubiertos.
Doble altura de techos.
Amplia vidriera de 29 mts lineales.
Debajo de un proyecto de 15 pisos de buena categoría.
Tiraje a los 4 vientos.

  Ubicación
  Street View

Contáctenos

Dirección: Olazabal 1515 Piso 10 Of. A1001 (Esq. Libertador al 6200)
Ciudad Autónoma de Buenos Aires

Telefono: (+5411) 4785-1200

Whatsapp : (15)3683-0810