PAREDES Brokers

Propiedades

Empresa


Atención personalizada y permanente en todas las instancias.

Historia

Nuestra empresa nació con el objetivo de ofrecer las mejores soluciones a las necesidades, cada vez más exigentes, del mercado inmobiliario. Desde nuestros orígenes en la década del ´70, como Paredes inmobiliaria, nos hemos desarrollado y especializado en el área de las propiedades comerciales e industriales.

Metas

Ofrecer el seguimiento y el análisis constante de cada operación inmobiliaria. Cumplir los plazos y expectativas del cliente, generando propuestas inteligentes y desarrollos creativos. Generar una relación comercial basada en la confianza Mejorar permanentemente la atención al cliente.

Servicio

Utilizamos tecnología de última generación para la comunicación, para trascender a nivel mundial a través de la página web y también para agilizar y promover la inmensa base de datos. Brindamos atención personalizada y permanente en todas las instancias. Ofrecemos respuestas de profesionales altamente capacitados ante los mínimos requerimientos de nuestros clientes.

FITZ ROY AL 2200
(PARAGUAY Y GUATEMALA)
PALERMO HOLLYWOOD

ALQUILER US 14000 
  Detalle de Propiedad
Superficie
539 M2
Tipo
LOCAL
  Descripción
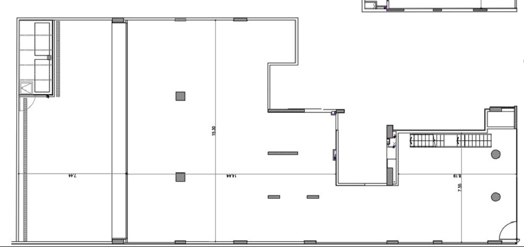
Planta Baja de 283 m²
Tiene 7,68 mts de frente por 26 mts de fondo + un patio de 103,58 m²
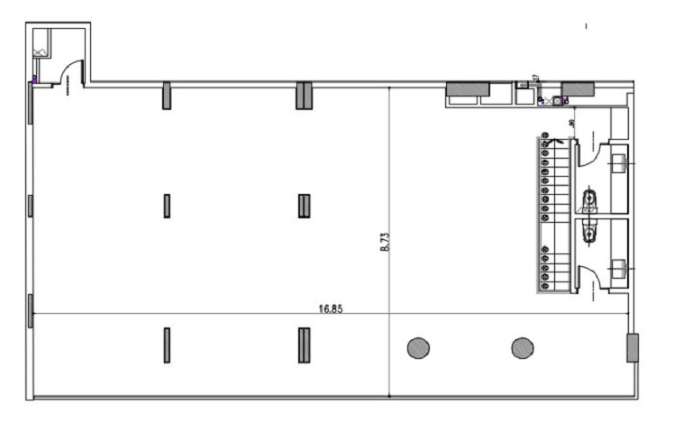
1°Piso de 152,82 m² tiene 16,85 mts de frente por 8,73 mts de fondo
Superficie total 539,49 m²
Es apto gastronomía sin conducto a los 4 vientos.
Expensas a confirmar

*las medidas son aproximadas
  Ubicación
  Street View

Contáctenos

Dirección: Olazabal 1515 Piso 10 Of. A1001 (Esq. Libertador al 6200)
Ciudad Autónoma de Buenos Aires

Telefono: (+5411) 4785-1200

Whatsapp : (15)3683-0810